Zur Navigation wechseln Zum Inhalt wechseln Zum Footer wechseln
Wohnzimmer mit Galerie
Top Angebot

Maisonettewohnung mit Galerie, 2 Balkonen und 2 Tiefgaragenstellplätzen!

ImmoNr
7506 RK
Objektart
Wohnung
Objekttyp
Maisonettewohnung
Vermarktungsart
Kauf
PLZ
51375
Ort
Leverkusen
Land
Deutschland
Etage
2
Kaufpreis
545.000,00 €
Wohnfläche
ca. 159 m²
Anzahl Zimmer
5,5
Anzahl Schlafzimmer
4
Anzahl Badezimmer
2
Anzahl sep. WC
1
Anzahl Balkone
2
Balkon
Ja
Befeuerung
Gas
Baujahr
2004
Zustand
Gepflegt
Energieausweis liegt vor
Vorhanden
Energieausweisdatum
12.07.2018
Mehr anzeigen zum Thema Beschreibung

Beschreibung

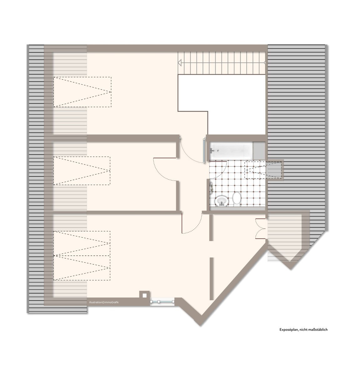
Diese großzügige Maisonettewohnung befindet sich in einem Mehrfamilienhaus mit sechs Wohneinheiten. Die Wohnung verfügt über ca. 159 m² Wohnfläche und überzeugt durch ihre Großzügigkeit und ihren gepflegten Zustand. Das Haus wurde im Jahr 2004 erbaut.

Mit insgesamt 5,5 Zimmern, darunter 4 Schlafzimmer, bietet diese Wohnung ausreichend Platz für Familien oder Paare, die Wert auf zusätzlichen Raum legen. Auf beiden Etagen befindet sich jeweils ein Badezimmer. Außerdem gehören zwei Balkone zu dem Objekt. Ein Aufzug ist nicht vorhanden.

Die Maisonettewohnung befindet sich in einem ansprechend gepflegten Zustand und ist ab sofort verfügbar. Im Kellergeschoss befindet sich ein Wasch- und Trockenraum sowie ein Abstellraum, welcher zur Wohnung gehört. Zwei Tiefgaragenstellplätze sind ebenfalls vorhanden und im Kaufpreis bereits enthalten.

Wir freuen uns darauf, Ihnen diese außergewöhnliche Immobilie persönlich präsentieren zu dürfen.
Mehr anzeigen zum Thema Lage

Lage

Die Maisonettewohnung befindet sich in einer der begehrtesten Wohnlagen von Leverkusen, einer dynamischen Stadt zwischen Köln und Düsseldorf. Die Umgebung besticht durch eine harmonische Mischung aus urbanem Flair und natürlicher Ruhe. Die Nähe zur malerischen Natur des Bergischen Landes bietet zahlreiche Möglichkeiten für Freizeitaktivitäten im Freien, während gleichzeitig die hervorragende Anbindung an die A3 und den öffentlichen Nahverkehr eine schnelle Erreichbarkeit der Großstädte und umliegender Wirtschaftsstandorte gewährleistet.

Einkaufsmöglichkeiten, Schulen und Kindergärten befinden sich in unmittelbarer Nähe, ebenso wie einladende Restaurants und Cafés, die zu entspannten Stunden einladen. Für Kultur- und Sportbegeisterte bietet Leverkusen zudem ein vielfältiges Angebot an Freizeit- und Kulturveranstaltungen. Die Lage verbindet somit hohe Wohnqualität mit idealer Infrastruktur und vielseitigen Freizeitmöglichkeiten, was sie zu einem idealen Wohnort für Singles, Paare und Familien macht.
Mehr anzeigen zum Thema Lage

Energieausweis

A+
< 30
A
30 - 50
B
50 - 75
C
75 - 100
D
100 - 130
E
130 - 160
F
160 - 200
G
200 - 250
H
> 250
Nutzungsart
Wohnen
Baujahr lt. Energieausweis
2004
Endenergieverbrauch
69 kWh/(m²a)
Energieausweisart
Verbrauchsausweis
Energieausweis gültig bis
12.07.2028
Energieeffizienzklasse
B
wesentlicher Energieträger
Gas
Warmwasser enthalten
Nein

Ihr Ansprechpartner

Raphael Kaczmarek

Herr Raphael Kaczmarek

VR Bank eG Bergisch Gladbach-Leverkusen

Tel.:
02202 126-332
E-Mail:
raphael.kaczmarek@vrbankgl-immobilien.de

Hauptstraße 186
51465 Bergisch Gladbach

Weitere interessante Immobilien

Leverkusen-Lützenkirchen: Großzügige 5-Zimmer-Wohnung mit zwei Loggien und herrlichem Weitblick

ImmoNr
7461JT
Objektart
Wohnung
Objekttyp
Etagenwohnung
Vermarktungsart
Kauf
PLZ
51381
Ort
Leverkusen
Anzahl Zimmer
5
Anzahl Schlafzimmer
4
Wohnfläche
ca. 127 m²
Kaufpreis
279.000,00 €

Barrierefreie 3-Zimmer-Wohnung mit Aufzug und TG-Stellplatz in Refrath!

ImmoNr
7507 RK
Objektart
Wohnung
Objekttyp
Etagenwohnung
Vermarktungsart
Miete
PLZ
51427
Ort
Bergisch Gladbach
Anzahl Zimmer
3
Anzahl Schlafzimmer
2
Wohnfläche
ca. 101 m²
Kaltmiete
1.400,00 €